Wystawiaj za darmo Logowanie Rejestracja

miejsce na motocykl w garazu podziemnym

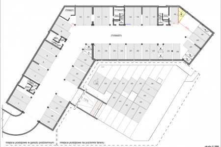
Do wynajęcia miejsce postojowe na motocykl w podziemnej hali garażowej przy ul. J. Popiełuszki 4 w Sieradzu. Miejsce stanowi trójkąt o wymiarach 4m x 3m x 5m . Na wjeździe znajduje się system kamer monitorujących budynek. Brama na pilota.

Cena 120zł/mies płatne co 6 miesięcy z góry.
Okres wypowiedzenia 2 miesiące

Nie tego szukasz? Przejrzyj inne oferty z tej kategorii (Usługi i WynajemNieruchomościWynajem garaży i parkingów). Możesz też zawsze przejść na stronę główną lub skorzystać z wyszukiwarki.

Ostatnie zmiany: 17.03.2025 16:31
Wygasa za 22 dni
Rozpoczęcie: 17.03.2025, 16:23, zakończenie: 22.11.2025, 11:02

Oferta jest już nieaktualna? Być może zawiera nieprawidłowo oznaczoną lokalizację, błędny numer telefonu czy w inny sposób narusza regulamin? Zgłoś nam ten problem - oferta zostanie sprawdzona w pierwszej kolejności!


Tito

 607 [pokaż]

Lokalizacja

  • Sieradz (gmina Sieradz)