Wystawiaj za darmo Logowanie Rejestracja

NOWE Lokale handlowo-usługowe

Oferta wycofana (nieaktualna)!

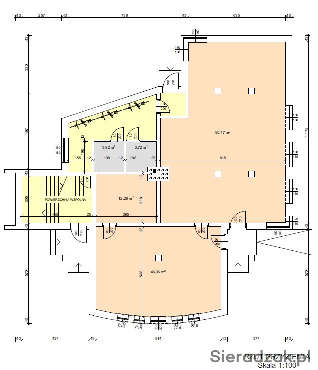
Do wynajęcia lokal usługowo-handlowy o pow. 161,9 m2 zlokalizowany w Sieradzu na skrzyżowaniu ulic Zagłoby i Chodkiewicza osiedle Hetmańskie. Lokal znajduje się na parterze z możliwością wydzielenia dwóch niezależnych lokali z osobnymi wejściami, lokal nr 1 - 85,77m2, lokal nr 2 - 58,64 m2. Lokal do adaptacji na dowolną działalność, zostanie dostosowany na potrzeby Najemcy, możliwość dostosowania do indywidualnych potrzeb, możliwość wydzielenia pomieszczeń gospodarczych, zaplacza oraz pomieszczeń sanitarnych w dowolnej konfiguracji.

Elementy wykończenia lokalu: nowa instalacja elektryczna, wod-kan, centralnego ogrzewania (ogrzewanie podłogowe), instalacja gazowa, tynki knauf diamant, nowe okna system KBE (3 szyby), podłogi przygotowane pod dowolne wykończenie.

Lokal wyposażony we wszystkie media: woda, prąd, kanalizacja, gaz ziemny, Internet – światłowód.

Tel. 503444134 

Cena wynajmu: 35 zł m2

Nie tego szukasz? Przejrzyj inne oferty z tej kategorii (Usługi i WynajemNieruchomościWynajem lokali użytkowych). Możesz też zawsze przejść na stronę główną lub skorzystać z wyszukiwarki.

Rozpoczęcie: 11.06.2021, 21:37, zakończenie: 21.01.2023 06:55

Oferta jest już nieaktualna? Być może zawiera nieprawidłowo oznaczoną lokalizację, błędny numer telefonu czy w inny sposób narusza regulamin? Zgłoś nam ten problem - oferta zostanie sprawdzona w pierwszej kolejności!


robertsieradz

 500 [pokaż]

Lokalizacja

  • Sieradz (gmina Sieradz)